Praxisabgabe | Praxisräume | 94342 Straßkirchen | Am 19.11.2025 veröffentlicht

Praxisräume zu vermieten

Bauer Immobilien e.K.

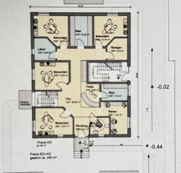
In Straßkirchen ( Lkrs Straubing-Bogen)entsteht ein Neubaugebäude mit zwei Wohneinheiten, im EG ist ein großer Praxisraum zum anmieten geplant .
Die Fläche beträgt inkl Keller ca.245 qm
EG 150 qm ca.100qm Keller/Lageranteil
Nähere Informationen gerne auf Anfrage !

Bildergalerie

Anzeigen ID
ANZ-3AC8D2

Praxisart
Praxisräume

Ab dem
01.01.2027

PLZ und Ort
94342 Straßkirchen

Praxisname/Unternehmen
Bauer Immobilien e.K.

Telefon
04915119075322

Kontakt zum Inserenten
VOILA_REP_ID=C1257C99:002F5EB3